kattintson a nagyítás engedélyezéséhez
betöltés...
Nincs találat erre a keresésre
Megtekintés Úthálózat Műhold Hibrid Domborzat Saját tartózkodási hely Teljes képernyős

0 Ft -ig 360.000.000 Ft

Egyéb tulajdonságok
Részletes keresés

0 Ft -ig 360.000.000 Ft

Egyéb tulajdonságok

Eladó családi ház Monokon – masszív szerkezet, bővíthető kialakítás, kiváló befektetési potenciál

26.900.000 Ft
kedvencekhez ad

Eladó családi ház Monokon – masszív szerkezet, bővíthető kialakítás, kiváló befektetési potenciál

Telefon:
Mail:kovacs.julianna@juliaingatlaniroda.hu

Kapcsolatfelvétel

Ingatlan érdeklődés

Az Ön keresési eredményei

Ingatlan leírása

Monokon eladó egy keresztúri és szilikát blokkból épült, stabil szerkezetű, 93 nm hasznos alapterületű családi ház műanyag nyílászárókkal. Az ingatlan három különálló hálószobával és egy tágas nappalival rendelkezik, jól átgondolt, praktikus elrendezéssel.

A szobák burkolata laminált padló, míg a többi helyiségben strapabíró csempeburkolat található. A ház frissen festett, rendezett állapotú, azonnal költözhető.

Az épület alatt dupla garázs kapott helyet, külön bejárattal, valamint egy vizesblokkal és mosókonyha résszel, amely jelenleg befejezésre vár – ez további értéknövelő lehetőség, akár háztartási helyiségként, akár műhelyként vagy tárolóként hasznosítva.

A 527 nm‑es telek könnyen karbantartható, ugyanakkor elegendő teret biztosít további fejlesztésekhez. A beépíthető tetőtér jelentős bővítési potenciált kínál, amely növeli az ingatlan hosszú távú értékét és hasznosíthatóságát.

Csendes, rendezett környezetben található, így alkalmas állandó lakhatásra, de befektetési célra is kifejezetten jó választás a szerkezeti adottságok, a bővíthetőség és a többfunkciós alsó szint miatt.

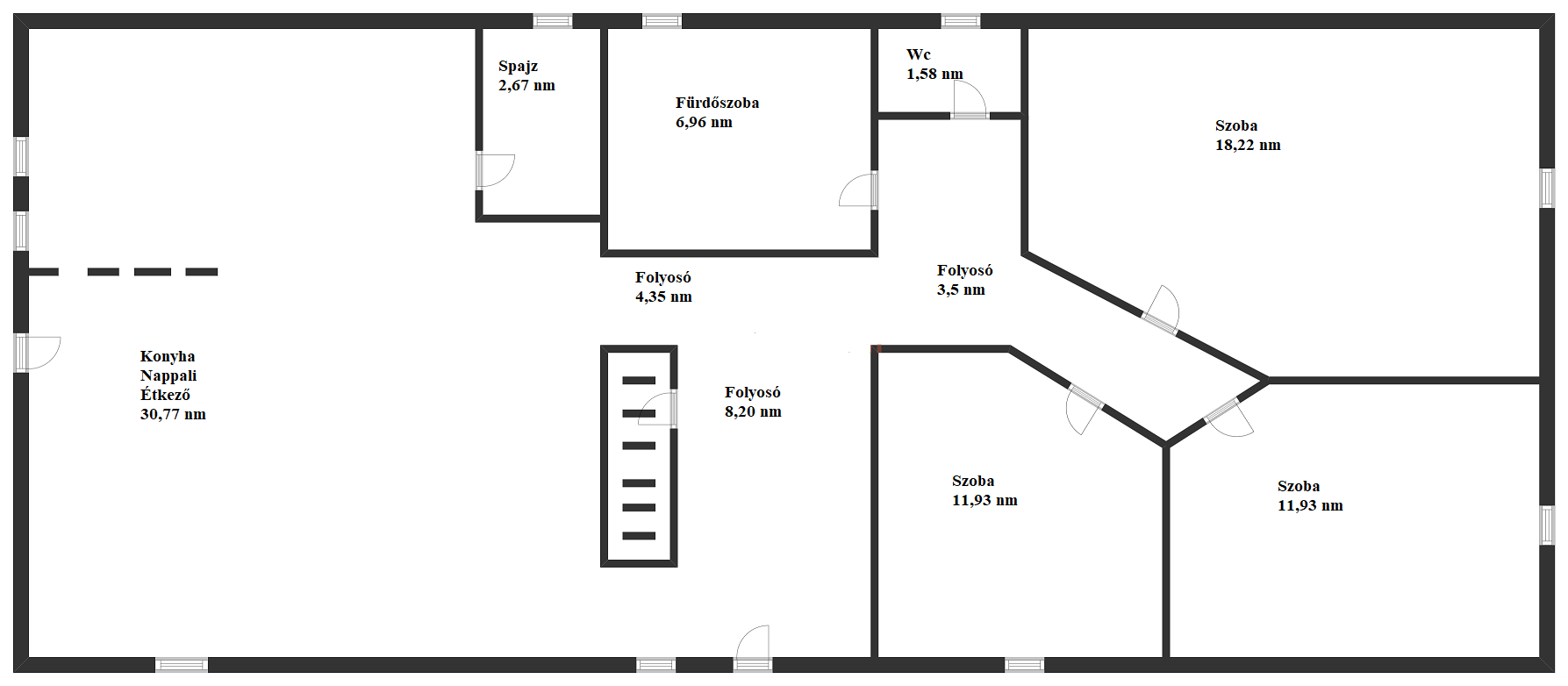
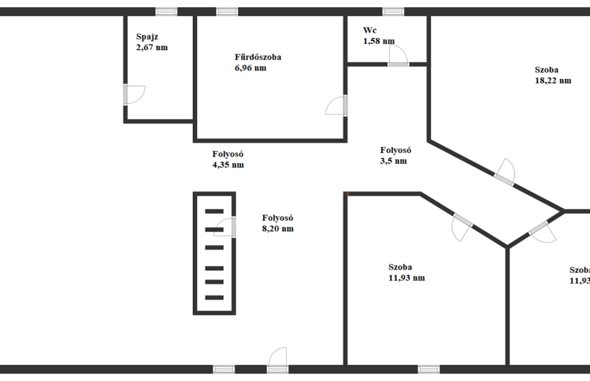
Helység lista:
1.Szoba: 18,22 nm
2.Szoba: 11,93 nm
3.szoba: 11,93 nm
Közlekedő: 16,05 nm
Wc: 1,58 nm
Fürdő: 6,96 nm
Kamra: 2,67 nm
Konyha + Nappali + Étkező: 30,77 nm

Város:
Irányítószám: 3905
Ország: Magyarország
Ingatlan azonosító: 34413
Ár: 26.900.000 Ft
Alapterület: 93 m2
Telek területe: 527 m2
Szobák: 0
Hálószoba: 3
Fürdőszoba: 1
Jogi Státusz: használt
Tájolás: észak
Fűtés: nincs
Tető: Cserép
Szintek Száma: 0
Építési Mód: tégla
Állapot: újépítésű
Belmagasság: 3 méter alatt
Akadálymentesített: Nem
Energetikai Tanúsítvány: nincs
Költözhető: azonnal
CSOK PLUSZ Feltételeknek Megfelelő: Igen
Kilátás: Utcára néző
Garázs: 2 állásos garázs
Komfort: komfort nélküli
Erkély: igen

Hasonló Hirdetések

összehasonlítás

Monok főutcáján eladó felújítandó családi há...

5.999.000 Ft
4
Egész szoba
72 m2
méret
kovjulia
március 20, 2026
összehasonlítás
kizárólagos

Eladó két különálló ingatlan egy telken, Mon...

8.999.000 Ft
7
Egész szoba
3
fürdőszoba
271 m2
méret
kovjulia
március 10, 2026
összehasonlítás
kizárólagos

🏡 Borsod-Abaúj-Zemplén vármegyében, Monok fő...

12.999.000 Ft
3
Egész szoba
1
fürdőszoba
80 m2
méret
kovjulia
március 10, 2026
  • A pénznem módosítása

  • Részletes keresés

    0 Ft -ig 360.000.000 Ft

    Egyéb tulajdonságok
  • Jelszó visszaállítása

  • Hitel kalkulátor

Összehasonlítás